- Фундамент: глубина 1,2-2,8 м, ленточный или блоки ФБС
- Цоколь: высота 0,45 м, фундаментный кирпич, блоки, монолит
- Наружные стены: толщина 350 мм, пенобетон/газобетон+лицевой кирпич
- Внутренние стены: пенобетон/газобетон, кирпич
- Высота 1-го этажа: 2,7-3,0 м
- Высота подвала: 2,2 м
- Перекрытия 1-го этажа: по деревянным балкам
- Перекрытия подвала: сборные ж/б плиты
- Кровля: битумная черепица, металлочерепица
- Наружная отделка стен: лицевой кирпич
- Наружная отделка цоколя: природный камень
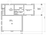
- Ширина: 16,1 м
- Длина: 11,1 м
- Высота от уровня пола 1-го этажа: 5,7 м
Работаем по нашим или вашим проектам, за наличный или безналичный расчет. Аккредитованы во всех основных банках. Строим поэтапно или "под ключ". Даем гарантию до 5 лет на строительство и отделку дома. Скачивайте проект, изучайте планировку, фасады и возвращайтесь к нам за сметой и строительством!
